Milford House
Guide price £825,000
The Property
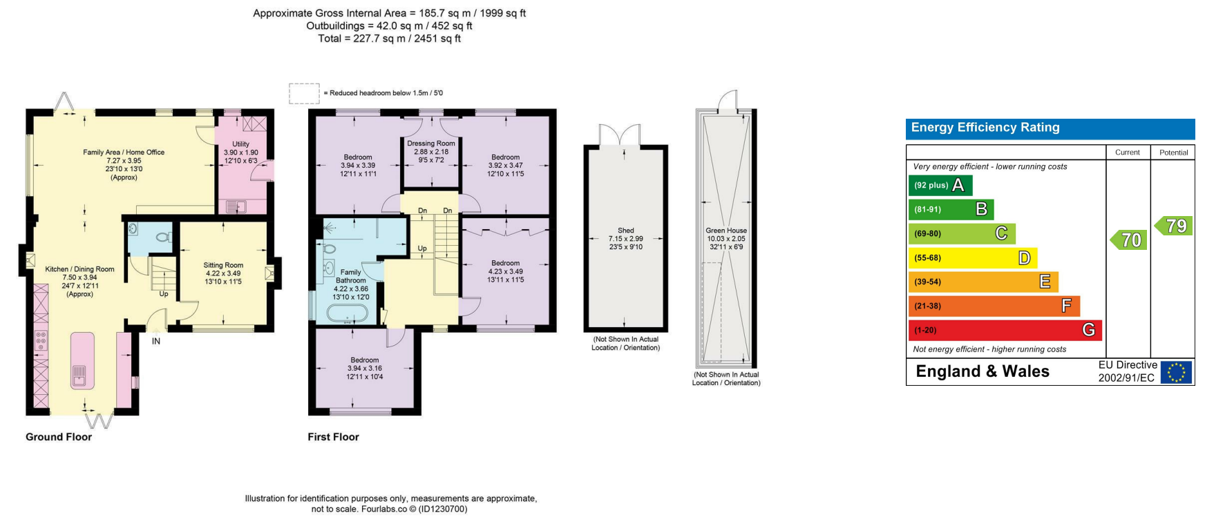
A beautifully presented and thoughtfully extended detached 1940s family home, set in the sought-after village of Chalford Hill. This property has undergone a comprehensive transformation and now offers superb contemporary living space. You enter via an open canopied porch into a bright hallway with cloakroom, built-in storage and staircase to the first floor. To the right, an inviting sitting room is centred around a stone fireplace with inset wood-burning stove. To the left lies the heart of the home: a ‘show stopping’ L-shaped open-plan kitchen, dining and family area — perfect for modern living. The front-facing kitchen is stylish and functional, featuring high-quality units, a central island, integrated Neff appliances (combination oven, main oven, warming drawer, gas hob), Quooker instant hot water tap and Bosch dishwasher. Folding sliding doors open onto a generous two-tiered terrace framed by the front garden — ideal for alfresco dining. This space flows into a dining area warmed by a second wood-burning stove, and beyond into a substantial rear living area extending along the house. Windows and bi-fold doors fill the room with light, connecting it to the garden. This versatile space suits entertaining, working from home, or a play area for children. A tiled utility/mudroom offers bespoke fitted storage, an integrated freezer and space for a washer and dryer. Side access is ideal for family life and muddy boots. Upstairs, a split-level landing leads to four double bedrooms. To the rear, two share a connected dressing room — ideal as a walk-in wardrobe or adaptable into an en suite (plumbing in place). The two front bedrooms enjoy far-reaching views, one with bespoke built-in wardrobes. The large family bathroom features a pedestal basin, WC, bath, large walk-in shower, and a walk-in storage area. A substantial, fully boarded loft with pull-down ladder provides storage while concealing the boiler, water filtration, home network and CCTV systems.
Outside
Externally, the property sits within a generous third of an acre plot. The grounds are a real highlight, wrapping around the property and offering both privacy and outdoor space. At the front, a handsome Cotswold stone boundary wall and a row of pleached trees create a sense of seclusion. A large, gated driveway providing parking for multiple vehicles. The superb two-tiered patio to the front with a contemporary glass surround perfect for entertaining. The space is surrounded by a variety of mature planting, trees and lawn. This curves around the left side of the house to the rear garden, where much of the outdoor activities take place. Here you’ll find a 10m greenhouse with electricity and water, a 7.5m shed, raised vegetable beds, fruit trees, an additional lawned area, tree house and even a fun ‘hobbit’ mound for children to enjoy.
Guide price
£825,000
Within easy reach:
Cirencester 10 miles
Stroud 5.2 miles
PROPERTY INFORMATION
Ofcom. Mobile coverage ‐ Good.
Broadband Superfast available
Septic Tank
• Hall with Cloakroom
• Sitting Room
• Open Plan – kitchen/dining/family space
• Utility
• Four Double Bedrooms
• Bathroom
• Gas C/H
• Parking for multiple cars
• 1/3 acre plot
• Greenhouse & Shed
Situation
Positioned between the centres of Stroud and Cirencester, known for its winding lanes and quaint corners studded with Cotswold stone homes, with an abundance of beautiful walks on the doorstep. Facilities include the highly reputed Chalford Hill Primary School, Puddleducks Pre-School, a community run shop and The Lavender Bakehouse and cafe. Encircled by pretty Cotswold countryside, Chalford and adjoining villages offer a variety of amenities, including further primary schools and Thomas Keble Secondary School as well as a selection of village pubs. In addition, Tesco Express, Frithwood Doctors Surgery and Eastcombe stores are positioned within a mile or less. Stroud and Cirencester offer further amenities including independent, state and grammar schools. Scenic routes radiate to Cheltenham and Gloucester, mainline railway stations at Stroud (4.2 miles) and Kemble (9.5 miles) provide a direct line to London Paddington.
Floorplan
Useful Information
Tenure: Freehold
Postcode: GL6 8BQ
Viewing: Strictly by appointment through Whitaker Seager.
Fixtures and Fittings: Only those items mentioned are included. All other items are specifically excluded, although some may be available by separate negotiation if required.
Local Authorities: Stroud District. Council Tax Band F and EPC rating C
Please note: in rural locations the map may not be 100% accurate
Other homes available locally
France Corner - Chalford Hill
Guide Price £850,000
Orchard House - Bourne, Brimscombe
Guide price £849,950
Spring Cottage - Eastcombe
Guide price £825,000
Glendalough - Chalford Hill
Guide price £750,000
Wesley View - France Lynch
Guide price £699,995
The Yews - Eastcombe
Guide price £650,000
The Shambles - Chalford
Guide price £599,950
1 The Orchard - Chalford Hill
Guide price £525,000
3 Brockley Acres - Eastcombe
Guide price £525,000
Somerlea - Bussage
Offers in excess of £495,000
10 Munday Close - Bussage
Guide price £475,000
16 Stonecote Ridge - Bussage
Guide price £450,000
2 Western Terrace - Brimscombe
Guide price £429,995
Lean House - Chalford
Guide price £425,000
2 Roseleigh Cottage - Brimscombe
Guide price £300,000
Nearby Chalford
Chalford Village Shop
Tesco Express
Eastcombe Stores and Post Office
Lavender Bakehouse
Boho Bakery
Kings Head Pub
Chalford Hill Primary School
Thomas Keble Secondary School
Bussage C of E Primary School
Chalford Sports and Social Club
Thomas Keble Sports Centre
Fitness Mill
Stroud Railway Station
Kemble Railway Station
M5 junction 13
Chalfest
Scarecrow Trail
The Cotswold Show and Food Festival
Our guide to Chalford
With its winding streets and beautiful Cotswold stone houses dotted along the hills and wooded valleys, it’s easy to see why this village is such a popular place to live.
Arrange a viewing
To arrange a viewing of this property please give us a call or send us an email.
Alternatively send us your details using the form below and we'll be in touch to arrange a viewing.














