Wesley View
Guide price £699,995
The Property
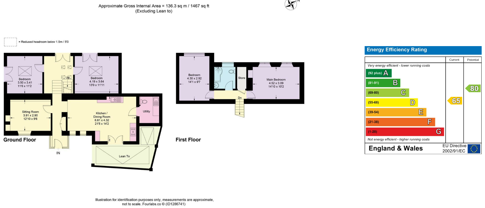
Nestled in the picturesque Cotswold village of France Lynch, this detached Cotswold stone cottage has been thoughtfully upgraded and extended by its current owners, creating an impressive four-bedroom family home that blends character with contemporary design. Unlike many properties in the area, Wesley View benefits from a private gravel driveway with parking for several vehicles, along with gardens to the front, side, and rear. The front and side gardens have been landscaped, while the rear terraced garden, complete with a decked terrace (currently not accessible), offers an opportunity for further improvement. A charming entrance porch provides space for coats and muddy boots, leading into an inner hallway. From here, doors open into the main living areas, while steps lead up to a rear snug/hallway and the modern extension. At the front, a cosy sitting room features built-in shelving and a Cotswold stone fireplace, currently housing an electric stove. The sociable family kitchen, formerly two rooms, now forms the heart of the home, offering space for both seating and dining, centred around a large island with excellent storage and informal dining space. Additional wall and base units complete the room, with space for a fridge/freezer and range cooker. French doors open to a covered courtyard, ideal for entertaining. Adjoining the kitchen is a utility room/cloakroom. To the rear, a spacious hallway/snug with flagstone floor and roof lights provides a relaxing additional living area. A short flight of stairs leads up to the first floor, reconnecting with the original cottage. The extension adds two double bedrooms, both with roof lights. Bedroom two also features French doors opening onto the side garden and has been used as both a bedroom and sitting room. On the top floor, there are two further double bedrooms along with a modern family bathroom. A large landing cupboard offers potential to be converted into an ensuite wet room, with a lintel already in place.
Outside
The property is approached by a gravel driveway providing parking for several vehicles. A pedestrian gate opens into the garden, with a pathway leading to the main front entrance of the cottage. Set behind a low fence, the front garden includes a covered courtyard adjoining the kitchen, as well as a lawn. Steps lead up to a low-maintenance gravelled garden, ideal for enjoying the sun. Additional garden space is positioned behind and above the cottage, including a decked terrace (in need of attention). Prior to the extension, this area was accessed via steps, which have since been removed. The space presents potential to create further usable garden and an elevated vantage point with open rural views across France Lynch
Guide price
£699,995
Within easy reach:
Stroud - 4.3 miles
Kemble Railway Station - 7.6 miles
Cirencester - 9 miles
Cheltenham - 14 miles
Gloucester - 13 miles
Bath - 29 miles
Bristol - 31 miles
• Entrance porch
• Sitting room
• Kitchen/dining room
• Utility/cloakroom
• Rear hall/snug
• 4 double bedrooms
• Family bathroom
• Enclosed garden and private driveway
• Gas central heating. Mains drainage
• Ofcom – Superfast broadband available – good outdoor and in-home mobile coverage. There is wayleave agreement.
Situation
Nestled in the heart of the Cotswolds, France Lynch is a charming village within the parish of Chalford, ideally positioned between Stroud and Cirencester. Known for its winding lanes, quaint corners, and Cotswold stone cottages, it is surrounded by beautiful countryside and scenic walks, including nearby Dimminsdale Nature Reserve. The village is home to St John the Baptist Church as well as France Lynch Church rooms which host a mixture of community and social events. Nearby villages provide a range of additional amenities, including Chalford Hill Primary School, Thomas Keble Secondary School, a communityrun shop, and Pudney Pie Cafe, while Bussage offers a Tesco Metro and Frithwood Doctors Surgery. Neighbouring villages offer a selection of public houses including the popular Old Neighbourhood pub, located in neighbouring Chalford Hill. Stroud and Cirencester offer farmers’ markets, a wider selection of shops and restaurants, and additional schooling including Stroud High and Marling Grammar schools, alongside Stroud College. Cirencester is also home to the Royal Agricultural University. Excellent road links provide access to Cheltenham and Gloucester, while mainline stations at Stroud and Kemble offer direct services to London Paddington
Floorplan
Useful Information
Tenure: Freehold
Postcode: GL6 8LP
Viewing: Strictly by appointment through Whitaker Seager.
Fixtures and Fittings: Only those items mentioned are included. All other items are specifically excluded, although some may be available by separate negotiation if required.
Local Authorities: Stroud District Council. Council Tax Band E and EPC rating D
Please note: in rural locations the map may not be 100% accurate
Other homes available locally
France Corner - Chalford Hill
Guide Price £850,000
Orchard House - Bourne, Brimscombe
Guide price £849,950
Spring Cottage - Eastcombe
Guide price £825,000
Glendalough - Chalford Hill
Guide price £750,000
The Yews - Eastcombe
Guide price £675,000
The Shambles - Chalford
Guide price £599,950
1 The Orchard - Chalford Hill
Guide price £525,000
3 Brockley Acres - Eastcombe
Guide price £525,000
Somerlea - Bussage
Offers in excess of £495,000
10 Munday Close - Bussage
Guide price £475,000
16 Stonecote Ridge - Bussage
Guide price £450,000
2 Western Terrace - Brimscombe
Guide price £429,995
Lean House - Chalford
Guide price £425,000
2 Roseleigh Cottage - Brimscombe
Guide price £300,000
Nearby France Lynch
Chalford Village Shop
Tesco Express
Eastcombe Stores and Post Office
Lavender Bakehouse
Boho Bakery
Kings Head Pub
Chalford Hill Primary School
Thomas Keble Secondary School
Bussage C of E Primary School
Chalford Sports and Social Club
Thomas Keble Sports Centre
Fitness Mill
Stroud Railway Station
Kemble Railway Station
M5 junction 13
Chalfest
Scarecrow Trail
The Cotswold Show and Food Festival
Arrange a viewing
To arrange a viewing of this property please give us a call or send us an email.
Alternatively send us your details using the form below and we'll be in touch to arrange a viewing.













